How to Choose a Casting Crane for Molten Metal Handling?
In the steel mill, metallurgical plant for a long time, we all know how high the risk of molten metal operations - a spoonful of thousands of degrees Celsius of steel, iron, relying on casting cranes (also known as ladle cranes) transit, which is the metallurgical workshop's “lifeline”. Choose the right one, can guarantee decades of safe and stable operation; choose the wrong one, not only will frequent downtime delay production, more likely to trigger steel leakage, equipment collapse and other catastrophic accidents.
I do in Henan Mine Crane metallurgical crane sales and technical support for more than twenty years, I have seen too many steel mills because of selection errors stepped on the pit: some in order to save costs, instead of a special casting crane with an ordinary bridge crane, less than two years on the steel structure deformation; some underestimated the intensity of the operation, selected the low level of equipment, frequent braking failures, the monthly downtime loss of tens of thousands of dollars.
Today, I will take the perspective of a line of engineers, the molten metal operation with casting crane selection points, dismantled clearly. Do not talk about false theories, only practical experience, to help you avoid common misunderstandings, and choose the equipment that is really suitable for steel plant conditions, while taking into account the safety, durability and cost-effective.

What Is a Casting Crane for Molten Metal Handling?
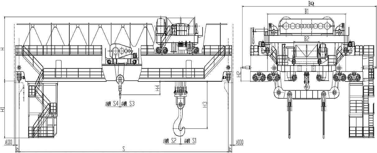
Simply put, a casting crane for molten metal handling is a heavy-duty double girder overhead crane designed specifically for lifting and transferring molten metal ladles. The biggest difference between it and ordinary overhead cranes lies in the whole design around the “safe, stable, high temperature”, the core function is in the steel mill converter, refining furnace, continuous casting machine, smooth transfer of steel, iron, taking into account the auxiliary lifting equipment maintenance.
Typical Applications
Casting cranes are used in almost the entire metallurgical industry, with the core focus on the transfer of molten metal, each of which has extremely high requirements for the safety and durability of the equipment.
Steelmaking workshop (BOF/EAF converter) is the most important application scenario, responsible for the converter smelting steel, transferred to the refining furnace or continuous casting machine, every day to withstand dozens of high-frequency lifting, is an indispensable core equipment in the production process of steel mills.
The secondary refining workshop (LF/RH refining furnace) is also inseparable from it, mainly used for lifting the steel after refining, as well as the auxiliary materials required in the refining process, the work requires higher precision to avoid the steel shaking caused by the composition of uneven.
Continuous casting area of the casting crane, responsible for lifting steel to the continuous casting machine crystallizer, but also with the rhythm of continuous casting, to achieve continuous, smooth supply of steel, once the equipment failure, the entire continuous casting production line will come to a standstill.
In addition, non-ferrous metal metallurgical plants (such as copper, aluminum smelting), will also use casting cranes, lifting non-ferrous molten metal, suitable for different melting points, different corrosive molten metal operation needs.
Working Environment Characteristics
Understanding the working environment of casting cranes, in order to understand why it needs a special design - the working environment of steel mills, known as the crane's “extreme testing ground”, every feature is testing the performance of the equipment.
High temperature and heat radiation is the most intuitive challenge. Steel temperature can reach more than 1600 degrees Celsius, cranes operating in this environment for a long time, the main beam, outriggers and other steel structures will be continuously baked, electrical components will also face high-temperature aging problems, ordinary crane components will not take long to fail.
Dust, smoke and corrosive gases should not be ignored. Steel smelting process will produce a lot of dust, fumes, these dust will enter the mechanical gaps in the equipment, electrical wiring, accelerating the wear and tear of components; corrosive gases will corrode the metal structure and electrical components, reducing the service life of the equipment.
More critical is the high-frequency, high-load continuous operation. Casting cranes in large steel mills are basically running 24 hours a day, and the number of lifting times per day can reach dozens of hundreds of times, which is in full load or even overloaded state for a long time, which is a great test for the rigidity of the structure of the equipment, the braking system, and the transmission system.
Why Casting Cranes Require Special Design
Many customers ask me why casting cranes are so much more expensive than ordinary cranes, which are also overhead cranes. The answer is simple - it is not an ordinary lifting equipment, but is customized for high-risk operations such as molten metal, and every part of its design is designed to cope with the extreme working conditions to ensure safety and durability.
High Safety Requirements
When working with molten metal, even a one-in-a-million malfunction can cause irreversible consequences - steel leakage can cause fires and burns, and equipment collapse can lead to casualties and huge property losses. Therefore, the safety requirements of casting cranes, far more stringent than ordinary cranes, must be equipped with multiple redundant safety systems.
For example, the braking system, ordinary cranes only a set of brake is enough, but casting cranes must be equipped with a double independent braking system (mechanical brake + electromagnetic brake), even if one set of brake failure, the other can be timely braking equipment to ensure that the ladle will not fall. This is the core requirement of molten metal crane safety features.
When Henan Mine Crane designs casting cranes, it also adds multiple safety configurations such as overload protection, rope breakage protection, anti-decoupling device, etc. Each safety component has been strictly tested to ensure that it can work properly under extreme conditions, eliminating potential safety hazards from the root.
Heavy-Duty Operation
The work intensity of casting cranes is incomparable to that of ordinary cranes, which requires it to reach a higher level of work. The industry standard is very clear, molten metal operation with casting cranes, the working level is usually FEM A7-A8, ISO M7-M8, CMAA Class E-F, which is also the core application of FEM A8 crane classification. Scenario.
Many customers will underestimate the importance of the working class, thinking that as long as the lifting capacity is enough, the low working class equipment can be used. Previously, there is a medium-sized steel mills, selected FEM A6 level of casting cranes, used in the converter shop steel lifting, less than a year on the deformation of the main beam, gear box wear and tear serious problems, the monthly maintenance costs increased by tens of thousands of dollars, and finally can only be replaced in advance of the equipment, but spent more money.
FEM A7 class is suitable for high-frequency, medium-heavy-duty operations, such as refining workshop; FEM A8 class is suitable for 24-hour continuous, high-heavy-duty operations, such as large converter workshop. Henan Mine Crane's casting cranes are designed according to A8 class by default, even if customers can't use such high working conditions for the time being, they can reserve space for upgrading, avoiding the trouble of remodeling in the later stage.
Extreme Environmental Conditions
The extreme environment of steel mills determines that casting cranes must have a strong ability to adapt to the environment, and the components of ordinary cranes simply can not withstand this test.
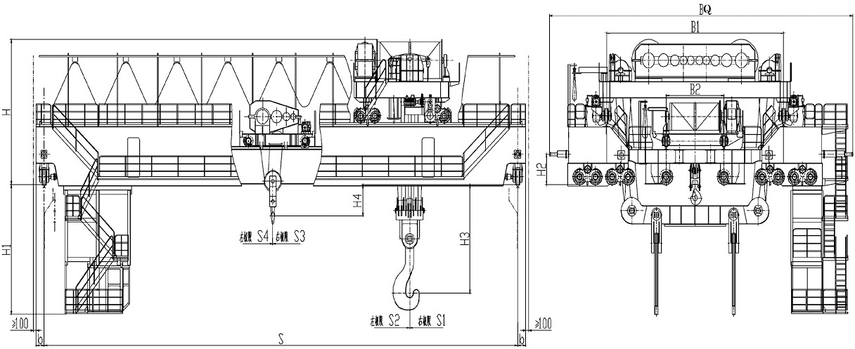
In terms of steel structure, high-temperature-resistant and fatigue-resistant high-strength steel must be used, and the main beam adopts a double-girder box structure to enhance the rigidity and resistance to deformation, and at the same time, a heat-resistant shield is added under the main beam to block the high temperature of the steel splash and slag erosion.
The electrical system is the key object of protection. Motors, brakes, electrical control cabinets should be insulated, sealed to avoid high temperatures and dust into the cable using high-temperature resistant models, can be in a high-temperature environment for a long time to work stably; part of the large equipment will also be equipped with electrical cabinet air conditioning, reduce the internal temperature, to extend the service life of the electrical components.
These special designs may seem to increase the cost of the equipment, but in fact it is to adapt to the extreme environment of the steel plant, reduce the later failure and maintenance costs, to ensure the long-term stable operation of the equipment.
Key Technical Factors in Choosing a Casting Crane
The core of choosing a Casting Crane is to match the actual operational requirements of the steel mill, and every technical parameter should not be sloppy. Many customers only look at the lifting capacity, ignoring other key factors, resulting in poor adaptability of the equipment, frequent failures. Combined with Henan Mine Crane's project experience, the following technical factors must be focused on when selecting the type.
Lifting Capacity and Configuration
The choice of lifting capacity should never be based only on the weight of molten steel, which is the most common selection misunderstanding. The correct approach is that the weight of molten steel, ladle weight, spreader weight all counted, but also to leave a full 10% -20% of the safety margin, to avoid the equipment is in a state of full load for a long time.
For example, lifting 40 tons of molten steel, ladle weight of about 12 tons, spreader weight of about 3 tons, then the rated lifting capacity of the crane should be at least 55 tons, in order to ensure safety. If there is a double package lifting, heavy-duty auxiliary material lifting needs, but also to appropriately increase the lifting capacity.
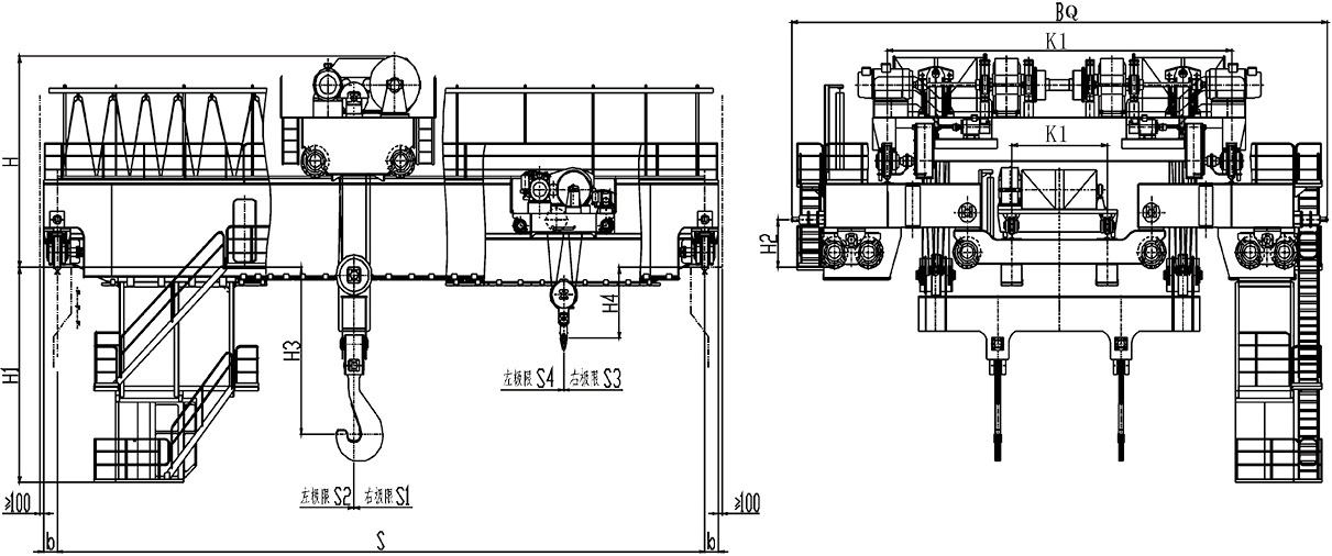
Configuration, the mainstream casting cranes are used “main lift (lifting ladle) + secondary lift (equipment maintenance)” configuration, the main lift is responsible for the core of the molten metal transfer, the secondary lift is responsible for the maintenance of other equipment in the workshop, auxiliary materials lifting, to enhance the utilization of equipment.
For large-scale steel mills, you can also choose double trolley and double hoist configuration, which can lift two ladles at the same time, or realize the rapid transfer of ladles to improve operational efficiency. Henan Mine Crane will customize the most suitable configuration according to the customer's operation rhythm and demand, avoiding “too big for the job” or “too big for the job”.

Duty Classification and Standards
Duty Classification is the core parameter of casting crane selection, which directly determines the durability and service life of the equipment. As mentioned before, molten metal work must choose FEM A7-A8, ISO M7-M8, CMAA Class E-F equipment, which is the industry's mandatory requirements, there can be no compromise.
FEM A7 class: suitable for 10-20 lifts per day, medium load operations, such as small refineries, non-ferrous smelters, the equipment can withstand high-frequency starts and stops, but is not suitable for 24-hour continuous heavy loads.
FEM A8 level: suitable for more than 20 lifting times per day, 24 hours continuous heavy load operation, such as large-scale converter workshop, continuous casting workshop, the structure of the equipment, the transmission system, the braking system have been strengthened, and can withstand high load operation for a long period of time, and the service life is longer.
In addition, it is also necessary to ensure that the equipment meets the relevant industry standards, such as ISO 4301, GB/T 3811, etc., and the export project should also meet the local certification requirements to avoid problems in the later acceptance. Henan Mine Crane's casting cranes, all in line with international and domestic standards, according to customer demand to provide the appropriate certification documents.

Structural Design Requirements
Structural design of casting cranes, the core is “strong rigidity, resistance to deformation, high temperature”, double girder box structure is the standard, but also the core structural features of metallurgical overhead crane.
The main beam of the double girder box structure is much more rigid than the single girder structure, which can effectively disperse the load pressure, reduce the shaking during the lifting process, and ensure that the steel is smooth to avoid spilling. The deflection of the main beam must be strictly controlled, usually not more than 1/1200 of the span, to ensure that the equipment will not appear obvious deformation even under full load.
The material of the steel structure is also very critical, it must be made of high-strength steel of Q355B and above grade, and alloy steel is used in some key parts (e.g. outriggers, end beams) to enhance fatigue resistance and high temperature resistance. At the same time, the surface of the steel structure will do special anti-corrosion and heat-resistant treatment to extend the service life.
Henan Mine Crane also optimizes the span of the main beam and the height of the outriggers according to the layout of the customer's workshop to ensure that the equipment can be perfectly adapted to the workshop space, and to avoid interfering with the converter, continuous casting machine and other equipment.
Hoisting System and Redundancy
Hoisting system is the core of casting crane, directly related to the safety and stability of lifting, must have enough redundancy design, to eliminate single point of failure.
The braking system must adopt double independent braking, a set of mechanical braking, a set of electromagnetic braking, both independent of each other, even if one set of failure, the other set of timely braking equipment to ensure that the ladle will not fall. The braking torque of the braking system must be more than 1.5 times of the rated load to ensure reliable braking.
Lifting motor, gear box can also be configured according to the needs of redundant systems, such as dual motor, dual gear box, even if one of the set of failures, the equipment can continue to run, to avoid downtime affecting production.
The wire rope and hook are the parts that directly carry the load and must have a very high safety factor. The steel wire rope is made of high-temperature-resistant and wear-resistant special steel wire rope with a safety coefficient of not less than 6 times; the hook is made of forged hook, equipped with anti-decoupling device to avoid the ladle from falling off, and meanwhile, regular flaw detection is carried out to ensure safety.

Heat Protection and Environmental Adaptation
In view of the high temperature and dusty environment in steel mills, the heat protection design of casting cranes must be in place, which is also a key point of difference from ordinary cranes.
Heat protection cover is installed under the main beam, which is made of high-temperature-resistant plate, can effectively block the high temperature of steel splashing and slag erosion, and protect the main beam, the electrical components and hoisting system underneath.
The motor, brake and electrical control cabinet should be insulated, the shell is made of high temperature resistant material, and the internal heat dissipation device is added to avoid the aging and failure of the parts caused by high temperature. The electrical control cabinet can also be equipped with an air conditioning system to control the internal temperature in a suitable range to ensure the stable operation of electrical components.
The cable is made of high temperature resistant cable, which can work stably for a long time under the high temperature environment of over 150℃, and at the same time, the cable is well protected to avoid being damaged by dust and slag. For workshops with serious dust and corrosive gases, the sealing performance of the equipment should be strengthened to prevent dust and corrosive gases from entering the equipment.
Essential Safety Features for Molten Metal Handling
Molten metal operation, safety is the first place, casting crane safety configuration, absolutely can not be saved.
The following core safety features, is the selection must focus on, but also molten metal crane safety features of the core content.
Mechanical Safety Systems
Dual independent braking system is the most important, this is to protect the ladle safety of the last line of defense, must ensure that the two sets of braking system is independent of each other, do not affect each other, even if one of the set of failures, the other set can also work normally.
Safety hooks must be equipped with anti-decoupling devices to prevent the ladle from falling off in the lifting process, while the hooks should be regularly flaw detection, cracks, wear and tear and other problems found, replaced immediately, can not be forced to use.
The overload protection system should monitor the lifting load in real time, and once it exceeds the rated load, it will cut off the lifting power immediately and send out an alarm signal at the same time, so as to avoid overload operation of the equipment and prevent accidents such as deformation of the structure and breakage of the wire rope.
In addition, it should be equipped with rope breakage protection, lifting height limit, running limit and other devices to ensure the safety of equipment operation in all aspects and eliminate any potential safety hazards.
Electrical and Control Safety
The electrical control system adopts PLC-based safety control system, which can realize precise control of the equipment, and at the same time has the function of fault diagnosis and alarm, once there is an electrical fault, it can send out an alarm signal in time, which is convenient for the staff to investigate and deal with it.
Limit switches must be redundantly designed, with two sets of lifting height limit and running limit, to ensure that when one set fails, the other set can work normally, to avoid over-traveling of the equipment, which may cause collision, fall and other accidents.
Emergency stop and safe descent functions are essential.
Emergency stop button should be installed in the position easily accessible to the operator, such as the driver's cab, ground operation station, in the event of an emergency, it can immediately cut off the power supply of the equipment and stop all the actions; safe descent function, in the event of power failure, brake failure and other emergencies, the ladle will be lowered smoothly to a safe position to avoid the expansion of the accident.
Operational Safety Enhancements
Anti-swaying control device can effectively reduce the swaying of ladle during lifting and transportation, especially during lifting, running and braking, it can control the swaying amplitude of ladle in the smallest range, avoiding the spillage of steel, and at the same time, improve the operational precision.
For the workshop of multi-crane operation, it must be equipped with anti-collision system, which can monitor the running position of multiple cranes in real time, and once the risk of collision occurs, it will send out an alarm signal immediately and automatically slow down and stop, so as to avoid collision between cranes, which will damage the equipment and cause accidents.
The cab should be insulated, dustproof treatment, equipped with air-conditioning system to improve the working environment of the operator; at the same time, the cab should have a wide field of vision to ensure that the operator can clearly observe the ladle and the operation area, to avoid operational errors. For high-temperature and high-risk areas, it can also be equipped with remote control function, so that the operator can operate the equipment in the center control room to reduce the risk of on-site operation.
Casting Crane vs Standard Overhead Crane
| Comparison Factor | Casting Crane | Standard Overhead Crane |
| Application | Molten metal handling (molten steel, molten iron, non-ferrous metal melts) | General material handling (steel, equipment, components, etc.) |
| Duty Class | FEM A7–A8, ISO M7–M8, CMAA E–F | Typically A3–A5, suitable for low-frequency, light to medium-load operations |
| Safety Redundancy | Multiple redundant systems (dual brakes, dual limit switches, overload protection, etc.) with strong pertinence | Standard safety configuration, no special redundant design |
| Heat Protection | Essential (heat-resistant shields, high-temperature components, heat insulation treatment) | Usually not included, unable to withstand high-temperature environments |
| Reliability Requirement | Extremely high, requiring 24/7 continuous stable operation with zero fault tolerance | Medium to high, suitable for regular operations, allowing occasional failures |
Many customers will be entangled, the same bridge crane, can we use ordinary bridge crane instead of casting crane? The answer is absolutely not. Both seem to be lifting equipment, but in the application scenarios, work level, safety configuration, etc., there is an essential difference, with ordinary cranes instead of casting cranes, is to take safety and production jokes.
Simply put, the core of the design of ordinary overhead cranes is “to meet the ordinary material handling”, while the core of the design of casting cranes is "to deal with molten metal high-risk, high-load, high-temperature conditions. The use of ordinary overhead cranes to lift molten metal, like a family car to pull heavy cargo, not only easy to damage the equipment, but also buried serious safety hazards.
Henan Mine Crane has encountered many customers, in order to save costs, with ordinary overhead cranes instead of casting cranes, and finally either because of frequent equipment failure downtime, or because of the safety hazards required by the regulatory authorities to rectify the situation, but instead of spending more money, the loss is not worth it.
Automation and Smart Features in Modern Casting Cranes
With the level of intelligence and automation in steel mills, casting cranes are also being upgraded, automation and smart features, not only to improve operational efficiency, but also reduce the number of operators on site, reduce operational risks, which is also the future development trend of metallurgical cranes.

Advanced Control Systems
Modern casting cranes commonly use PLC and VFD (variable frequency) control systems, which can realize the smooth control of lifting and running, reduce the shaking of the ladle, and improve operational accuracy. Variable frequency control can also realize stepless speed regulation, avoiding the impact when starting and stopping, protecting equipment parts and prolonging service life.
The anti-shaking control technology is also constantly upgraded, through the intelligent algorithm, it can adjust the lifting and running speed in real time, and control the shaking amplitude of the ladle in the smallest range, especially in the high lifting height and large span operation, the effect is more obvious, avoiding the spillage of steel, and guaranteeing the safety of operation.
Remote and Automated Operation
Remote control function allows the operator to operate the casting crane in the control room, without having to work in the high temperature and high risk workshop, which not only improves the working environment of the operator, but also reduces the risk of on-site operation.
For large steel mills, automated workshops, can also realize the fully automatic operation of casting cranes, through the workshop with the MES / SCADA system docking, to realize the automatic issuance of operating instructions, automatic lifting of ladles, automatic monitoring of equipment status, the whole process without human intervention, significantly improve operational efficiency and reduce human error.
Henan Mine Crane's casting cranes can be customized according to the customer's intelligent needs, remote control, fully automated operation of the program, to adapt to the intelligent transformation needs of different steel mills, to help customers achieve efficient, safe and intelligent production.
Intelligent Monitoring and Predictive Maintenance
Intelligent monitoring system can monitor the running status of the equipment in real time, including load, temperature, vibration, brake clearance and other parameters, and once abnormalities occur, an alarm signal will be sent out immediately, so as to facilitate timely investigation and treatment by the staff to avoid equipment operation with disease and reduce the breakdown and shutdown.
Predictive maintenance technology, through the analysis of equipment operation data, can pre-judge the wear and tear of components, such as the service life of the wire rope, the degree of wear and tear of the braking system, and arrange for maintenance and replacement in advance, to avoid sudden failures and reduce downtime losses.
At the same time, the equipment can be docked with the MES/SCADA system of the steel plant to realize the real-time uploading and sharing of equipment operation data, which is convenient for the managers to fully grasp the status of the equipment, formulate scientific maintenance plans, and improve the efficiency of equipment management.
Key Considerations for Steel Plant Integration
Casting cranes are not isolated equipment, and must be perfectly integrated with the production process and workshop layout of the steel plant, otherwise, even if the equipment itself is of good quality, it will not be able to maximize the role, and even affect the production efficiency. When selecting a model, these factors related to the integration of the steel plant must be considered.
Workshop Layout and Crane Configuration
First of all, the span, lifting height and hook limit distance of the crane should be determined in conjunction with the layout of the workshop. For example, the span of the converter workshop is usually determined according to the number of converters and the layout, usually between 30-40 meters; the lifting height should meet the needs of the ladle transfer from the converter to the refining furnace and continuous casting machine, and at the same time, it should also leave enough safety margin to avoid interference with the pipelines and structures on the top of the workshop.
The limit distance of the hook is also very critical to ensure that the hook can smoothly transport the ladle to the designated location, such as the steel outlet of the converter, the entrance of the refining furnace, the continuous casting machine above the crystallizer, to avoid the dead angle of transportation.
Henan Mine Crane's engineers will come to your home to survey the workshop site and customize the appropriate crane span, lifting height and hook configuration to ensure that the equipment can be perfectly integrated into the production process and improve the operational efficiency, taking into account the customer's production process and workshop layout.
Power Supply and Reliability
Casting cranes are heavy equipment with high requirements for power supply stability. Any interruption in power supply will not only affect production, but may also prevent the ladle from being lowered, leading to safety accidents.
Therefore, steel mills must be equipped with a stable power supply system for casting cranes, it is recommended to use a double circuit power supply, once one of the circuits failures, the other circuit can be immediately switched to ensure that the equipment operates normally. At the same time, but also equipped with emergency power supply, in the case of sudden power failure, can provide temporary power supply for the equipment, the ladle will be smoothly lowered to a safe position to avoid the expansion of the accident.
In addition, the stability of the power supply voltage is also very important, the voltage fluctuation should not exceed ±5%, otherwise it will affect the normal work of the electrical system, resulting in motor burnout, control system failure and other problems.
Multi-Crane Coordination
For large steel mills, a workshop may have more than one casting crane operating at the same time, which needs to consider the coordination of multiple cranes to avoid mutual interference and collision.
First of all, we should be equipped with anti-collision system, real-time monitoring of the operating position of multiple cranes, once the risk of collision, immediately send out an alarm signal, and automatically slow down, stop, to ensure equipment safety. Secondly, it is necessary to reasonably divide the operating area, clarify the operating range of each crane, avoid cross operation, and improve operational efficiency.
For scenes that require coordinated operation, such as double cranes jointly lifting heavy steel bales, but also equipped with synchronization control system to ensure that the two cranes are lifted, running at the same speed, to avoid tilting and shaking of the bales, to protect the safety of the operation.
Maintenance Strategy for Casting Cranes
The service life of casting cranes depends not only on the quality of the equipment itself, but also on the later maintenance. A set of scientific maintenance strategy can extend the service life of the equipment for 5-10 years, reduce the failure downtime rate, reduce maintenance costs. Combined with Henan Mine Crane's experience, the following maintenance points must be focused on.
Preventive Maintenance Planning
Preventive maintenance is the core, can not wait for the equipment is broken and then repair, according to the intensity of the operation of the equipment and parts of the wear cycle, the development of regular maintenance program.
Daily Maintenance: Before each day's operation, check the braking system, wire ropes, hooks, limit switches and other key components to ensure that there is no abnormality; after the operation, clean up the dust and slag on the surface of the equipment, and check whether the electrical wiring is firm.
Regular maintenance: carry out a weekly comprehensive inspection of the equipment, focusing on checking the lubrication of the gear box and motor, and replenish the lubricating oil; monthly check the brake clearance, wear and tear of the steel wire rope, adjust the braking system, and replace the parts with serious wear and tear; carry out an ultrasonic flaw detection on the steel structure once a year, to check whether there are any cracks, deformations and other problems, and repair them in a timely manner.
Heat-Related Wear Management
Under the high temperature environment, the parts of the equipment will wear out faster, especially the electrical parts, seals, wire ropes, etc., which must be paid attention to.
Regularly check the heat insulation and sealing of electrical parts, and replace aged high temperature cables and seals; check the high temperature resistance of steel wire ropes, and replace them immediately when corrosion and broken wires are found; check the integrity of heat-resistant protective cover, and repair damaged parts in time to avoid high temperature erosion of equipment.
At the same time, the dust inside the equipment should be cleaned up regularly to avoid the accumulation of dust leading to wear and tear of parts, electrical short circuit, and to prolong the service life of the equipment.
Predictive Maintenance Technologies
Predictive maintenance can be realized with the help of intelligent monitoring systems, which can effectively reduce sudden failures. By installing vibration sensors, temperature sensors and other equipment, we monitor the operating status of motors, gearboxes and braking systems in real time, analyze the operating data of the equipment, and anticipate the wear and tear of components in advance.
For example, through the vibration sensor to monitor the vibration frequency of the gear box, once the vibration frequency is abnormal, it indicates that the gear box may be worn out, failure, and in advance to arrange for maintenance and replacement, to avoid gear box damage caused by equipment downtime.
Spare Parts and Service Support
Stockpiling necessary spare parts is the key to minimizing downtime losses. For fragile parts, such as wire rope, brake pads, seals, high temperature cables, etc., it is necessary to reserve enough safety stock, so that once the parts are damaged, they can be replaced in time to avoid long downtime.
Choose a strong and experienced supplier to get more professional after-sales support. Henan Mine Crane provides each customer with an exclusive after-sales team, which makes regular visits to solve problems encountered in the process of equipment maintenance; at the same time, it provides sufficient supply of spare parts to ensure that when the equipment fails, it can be quickly responded to and repaired in a timely manner.
Common Mistakes When Choosing a Casting Crane
Combined with more than twenty years of industry experience, I summarized the most common 5 misconceptions when choosing a casting crane, many customers have stepped on these pits, I hope you can avoid.
The first pit, using ordinary overhead cranes instead of casting cranes. This is the most dangerous and common misunderstanding, ordinary cranes do not have high temperature resistance, redundant safety systems, can not withstand the high risk of molten metal operations, it is easy to cause safety accidents, and the maintenance costs of the later period will also increase significantly.
The second pit, underestimate the working level requirements. Many customers only look at the lifting capacity, ignoring the level of work, selected a low level of equipment, resulting in frequent equipment failures, the service life is greatly shortened. For example, 24-hour continuous operation of the converter shop, you must choose FEM A8 level, choose A7 level will be overloaded, wear and tear too fast.
The third pit, ignoring redundant safety systems. Some customers in order to save costs, omit the double braking, redundant limit and other safety configurations, it seems to save money, but actually buried a serious security risks, once the failure, the consequences are unimaginable.
The fourth pit, overlooking heat protection and environmental factors, especially small and medium-sized steel mills, it is easy to ignore the high temperature, dust on the impact of the equipment, selected no heat protection, sealing performance is poor equipment, resulting in rapid aging of the equipment components, frequent failures, maintenance costs remain high.
The fifth pit, choose a supplier without metallurgical crane experience. The design, production and installation of casting cranes require rich experience in the metallurgical industry, many suppliers do not have relevant project experience, the production of equipment can not be adapted to the working conditions of the steel plant, and it is easy to appear in the late stage of various problems, after-sales can not be followed up in a timely manner.
Henan Mine Crane has been focusing on heavy metallurgical cranes for more than twenty years, and has participated in many large-scale steel plant projects at home and abroad, and has accumulated rich experience, which can help you avoid these misunderstandings and select the appropriate equipment.
Casting Crane Selection Checklist
In order to facilitate you in the procurement inquiry (RFQ), clear their own needs, to avoid deviation in the later stage, I have compiled a casting crane selection checklist, fill in against, you can clearly sort out their own purchasing needs, but also allows the supplier to more accurately for you to quote.
- Rated lifting capacity (need to include the weight of the ladle, spreader, reserve 10% -20% safety margin)
- Crane span, lifting height, hook limit distance
- Working class requirements (FEM/ISO/CMAA, minimum A7 recommended)
- Safety redundancy requirements (whether dual brakes, dual motors, redundant limits, etc. are required)
- Operating environment parameters (maximum ambient temperature, dust concentration, corrosive gas conditions)
- Automation and control requirements (whether remote control, fully automatic operation, anti-shaking control are required)
- Applicable standards and certification requirements (domestic GB standards, international ISO standards, export projects need to comply with local certification)
- Installation and commissioning requirements (whether the supplier needs to install and commission at home)
- After-sales and spare parts support (whether to provide regular inspection, spare parts supply)
Frequently Asked Questions
Q1: What is the difference between a casting crane and a ladle crane?
Actually there is no difference between the two in essence, they are both cranes specially designed for lifting molten metal ladles, just called differently. Casting crane is a common name, ladle crane (ladle crane) is more focused on the “lifting ladle” call, Henan Mine Crane production of such cranes, no matter what kind of name, the core performance and safety standards are the same, can meet the needs of molten metal handling.
Q2: What duty class is required for molten metal handling?
Molten metal handling requires a very high duty class for cranes, usually FEM A7-A8, ISO M7-M8, or CMAA Class E-F. The specific duty class you choose depends on your needs. Which class to choose depends on the intensity of your work: if it is high frequency, 24 hours continuous work (such as large converter shop), choose FEM A8 class; if it is medium frequency, medium load work (such as small refinery), choose FEM A7 class can be.
Q3: Why are dual brakes required for casting cranes?
Because molten metal operations are extremely risky and a falling ladle can cause a catastrophic accident if the braking system fails. Dual braking system (mechanical brake + electromagnetic brake) ensures that when one set of brakes fails, the other set can stop the equipment in time, locking the ladle firmly and avoiding accidents, which is a mandatory safety requirement for molten metal operation and the core of molten metal crane safety features.
Q4: Can casting cranes be automated?
Yes, you can. Modern casting cranes fully support automation and remote control, through PLC, frequency control system, and docking with the MES/SCADA system of steel mills, they can realize fully automated operation - automatic reception of operating instructions, automatic lifting of ladles, automatic monitoring of the status of the equipment, the whole process without human intervention. Henan Mine Crane can customize the automation solution according to your intelligent needs to improve the operation efficiency and reduce the operation risk.
Q5: What is the typical lifespan of a casting crane?
Under the premise of reasonable design and standardized maintenance, the service life of a casting crane can usually reach 20-30 years or even longer. Henan Mine Crane's casting cranes are made of high-strength steel, high-quality components, coupled with scientific structural design, as long as the regular maintenance is done, they can operate stably for a long time, saving the cost of equipment replacement for the steel mills.

Conclusion
Casting cranes, steel mills, metallurgical plants molten metal operations, “lifeline”, its selection, directly related to production safety, operational efficiency and long-term operating costs.
Selection of casting cranes, can not only look at the price, look at the lifting capacity, but also pay more attention to the level of work, safety redundancy, heat protection and steel plant integration adaptability. They are not ordinary lifting equipment, but specialized equipment tailored for high-risk, high-load, high-temperature working conditions, where every design is about safety and durability.
Henan Mine Crane Factory Custom
Henan Mine Crane has been focusing on the design, production and service of heavy metallurgical cranes for more than 20 years, witnessing the development of countless steel mills and accumulating rich experience in selection and operation. We always adhere to the principle of “safety first, fit first”, from site survey, program design to installation and commissioning, after-sales support, to provide you with professional services, to help you choose a truly suitable casting crane, to avoid selection errors, to protect production safety and efficiency.
Choosing a suitable casting crane is not only a purchase investment, but also an investment in the production safety and long-term development of the steel mill. Only choose the right equipment, do a good job of maintenance, in order to make it become a steel production “right-hand man”, for you to create greater value.